














Ref. 01837
Baugrundstück zu verkaufen in Palma - Son Vida
1.899.000,00 €
Beschreibung
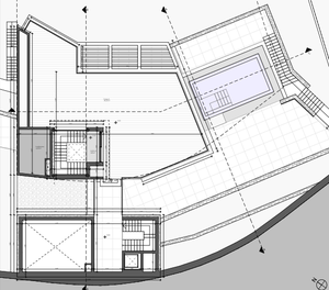
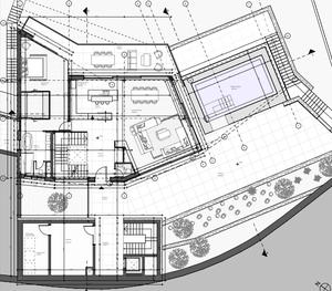
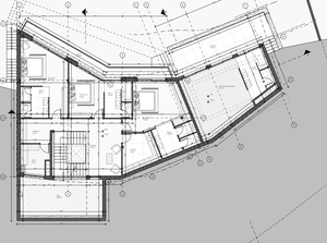
Dieses große Baugrundstück zum Verkauf in Son Vida befindet sich in einem kürzlich freigegebenen neuen Teil von Son Vida mit herausragenden Luxusvillen der Spitzenklasse. Das Grundstück befindet sich auf den Hügeln und bietet einen atemberaubenden Meerblick über die Bucht von Palma und die Stadt. Es hat eine Gesamtfläche von 2.225m2 und bietet entsprechend seiner Bauquote von 35% die Möglichkeit, beeindruckende 790m2 bebaute Fläche und über 630m2 Wohnfläche zu bauen. Ein beeindruckendes Projekt einer außergewöhnlichen Luxusvilla wurde vorbereitet und die Baugenehmigung soll in Kürze erteilt werden. Das Projekt umfasst insgesamt 4 Ebenen mit einer großen Eingangshalle und Doppelgarage und Aufzug auf der obersten Ebene, geräumiges Wohn- und Esszimmer, offene Küche und ein über 50m2 großes Hauptschlafzimmer mit begehbarem Ankleidezimmer und großem Bad en-suite in der oberen Ebene sowie 3 weitere Schlafzimmer mit Bädern en -suite und Poolterrasse mit 30m2 großem Infinity Pool in der unteren Ebene. Ein separates Gästehaus runden dieses hervorragende Angebot eines bebauten Grundstücks mit Meerblick in Son Vida mit Projekt und Lizenz ab.
Region
Son Vida ist eine der exklusivsten Adressen auf Mallorca. Internationale Schulen und bekannte Persönlichkeiten verschiedener Nationalitäten machen Son Vida zu einem idealen Ort für anspruchsvolle Paare und Familien. Das vielfältige Angebot an drei Golfplätzen, Palma mit seiner Altstadt, Sternerestaurants, Boutiquen und Yachthäfen sind weitere Gründe, warum Son Vida, auch bekannt als „Beverly Hills von Mallorca“, eine so exklusive Urbanisation ist. Son Vida liegt nur wenige Autominuten von Palmas Altstadt und weniger als 10 Minuten vom internationalen Flughafen entfernt.
Merkmale
Karte
Energieausweis
| Emission kWh pro Jahr | |